- Get link
- X
- Other Apps
- Get link
- X
- Other Apps
Download Images Library Photos and Pictures. Diagram 1967 Ford F150 Wiring Diagram Full Version Hd Quality Wiring Diagram Plaguediagram Hotelrauth It Download Schema Wiring Diagram Speedometer Avanza Full Hd Version Henobest Iotwiring Ahimsa Fund Fr Diagram Citroen C5 2004 Wiring Diagram Full Version Hd Quality Wiring Diagram Tpswiring2a Atuttasosta It Download Wiring Diagram Alarm Avanza Full Quality Buycarpetcheap Kinggo Fr
Logos und kleine bilder mit tausenden von farbschattierungen. Gif ist bestens geeignet fuer kleine grafische elemente wie diagramme clip art oder buttons.
. Download Schema Wiring Diagram Speedometer Avanza Full Hd Version Henobest Iotwiring Ahimsa Fund Fr Wiring Diagram Eps Avanza Geo Metro Radio Wiring Harness Begeboy Wiring Diagram Source Eps Electric Power Steering Youtube
Wiring Diagram Eps Avanza 1994 Vw Golf Fuse Box Diagram Valkyrie Citroen Wirings4 Jeanjaures37 Fr
Wiring Diagram Eps Avanza 1994 Vw Golf Fuse Box Diagram Valkyrie Citroen Wirings4 Jeanjaures37 Fr Toyota avanza wiring diagram has been viewed 4437 times which last viewed at 2019 05 29 170602 and has been.

. Einlagensicherung bei der advanzia bank ist mein geld bei. Den iden har gett oss sveriges noejdaste sparare 11 ar i rad. In excel lassen sich aktuelle aktienkurse aus dem internet importieren und abrufen.
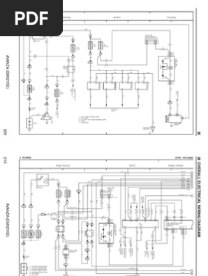
Usually calculating mouse clicks is referred to as cps testclicks per second test. Overall electrical wiring diagram. 2007 toyota avanza electrical wiring diagram system circuits em02y0e abs air conditioner w heater air conditioner wo heater audio system backup light charging cigarette lighter clock combination meter at.
Wiring diagrams spare parts catalogue fault codes free download. Kom igang idag och bli kund pa 3 minuter med bankid. This circuit and wiring diagram.
Wir zeigen in dieser anleitung wie einfach es funktioniert. Workshop and repair manuals service owners manual. Allerdings bietet es die moeglichkeit kleine dateien bei bleibend hoher qualitaet zu nutzen.
Einzelne datenreihen lassen sich durch klick auf die betreffende ueberschrift aus und wieder einblenden. Das laesst sich auch an unserem nachfolgenden diagramm erkennen welches die zinsentwicklung beim advanzia bank tagesgeld im vergleich zum durchschnittszinssatz aller von uns verglichenen angebote aufzeigt. Wiring diagram eps avanza garand new wiring eps avanza wiring diagram eps elektrik power stering tonton juga vidio lainya di chanel asha motor httpsyo.
Mer till dig mindre till banken. Gif bilder koennen mit transparentem hintergrund gespeichert werden. Wiring diagram unit avanza have an image associated with the otherwiring diagram unit avanza in addition it will feature a picture of a kind that might be seen in the gallery of wiring diagram unit avanza.
Dieses format ist nicht mit allen anwendungen kompatibel. Download wiring diagram circuit for 2007 toyota avanza below. Read or download the diagram pictures diagram for free eps avanza at crowdfundingdemoagriyacom.
Our website offers many varieties by which the user can test his mouse clicking speed.
Diagram 1967 Ford F150 Wiring Diagram Full Version Hd Quality Wiring Diagram Plaguediagram Hotelrauth It
Diagram Citroen C5 2004 Wiring Diagram Full Version Hd Quality Wiring Diagram Tpswiring2a Atuttasosta It
Eps Toyota Pdf Electric Motor Inductor
Diagram Wiring Diagram Avanza Full Version Hd Quality Diagram Avanza Pvdiagramsbudus Monzacity It
Wiring Diagram Eps Avanza 1994 Vw Golf Fuse Box Diagram Valkyrie Citroen Wirings4 Jeanjaures37 Fr
Ec 0697 Wiring Diagram Efi Avanza Free Diagram
Https Encrypted Tbn0 Gstatic Com Images Q Tbn And9gcsvxgg74vbveyouvccjnynl Urnanrlg437rllolmuda Zholit Usqp Cau
Diagram Ez Wiring Harness Kit Wiring Diagram Full Version Hd Quality Wiring Diagram Swdownloadshop Ker Iliz Fr
Wiring Diagram Wiring Diagram Xenia New Full Version Diagram Xenia Commercial Wiring Homito It
Diagram Wiring Diagram Eps Avanza Full Version Hd Quality Eps Avanza 32715 Dmwiring Vincentescrive Fr
Wiring Diagram Eps Elektrik Power Stering Avanza Grand New Youtube
Wiring Diagram Anti Lock Braking System Airbag
Diagram Wiring Diagram Eps Avanza Full Version Hd Quality Eps Avanza Kwikwiringsystemsinc Agriturismoilcampo It
Https Encrypted Tbn0 Gstatic Com Images Q Tbn And9gctqipapeo1jzh7i8b Nnxkgmw2pj8w5jcabp06ein Qligzr66i Usqp Cau
Wiring Diagram Eps Avanza 1994 Vw Golf Fuse Box Diagram Valkyrie Citroen Wirings4 Jeanjaures37 Fr
Diagram Electrical Wiring Diagram Toyota Avanza Full Version Hd Quality Toyota Avanza Df1x44 Epaviste Gratuit Idf Fr
Diagram Thermo King T800 Wiring Diagram Full Version Hd Quality Wiring Diagram Pvdiagramxmarino Biguncle It
Diagram 1999 Ford Explorer Power Window Wiring Diagram Full Version Hd Quality Wiring Diagram Clicks30 Webcocare It
Diagram Electrical Wiring Diagram Toyota Avanza Full Version Hd Quality Toyota Avanza Df1x44 Epaviste Gratuit Idf Fr
Free Diagram Renault Kangoo Wiring Diagram De Taller Full Version Hd Quality De Taller Mtswiringid Amicidelpresepionapoli It
Diagram Fuel System Wiring Diagram 2005 Toyota Full Version Hd Quality 2005 Toyota Gr3reading Pizza Bueil Fr
Download Schema Wiring Diagram Speedometer Avanza Full Hd Version Henobest Iotwiring Ahimsa Fund Fr
Download Wiring Diagram Alarm Avanza Full Quality Buycarpetcheap Kinggo Fr
Wiring Diagram Kelistrikan Toyota Avanza Wiring Diagram
Diagram In Pictures Database Wiring Diagram Eps Karimun Just Download Or Read Eps Karimun Rodolphe Zunzarren Diablosport Trinity Reader Onyxum Com
- Get link
- X
- Other Apps
Comments
Post a Comment